いわくに交流テラスMiraido
いわくに交流テラスMiraidoは、中央公民館、岩国図書館、岩国出張所、いわくに市民活動支援センターの機能を備えた複合施設として、令和8年6月にリニューアルいたします。
愛称Miraidoは、「未来(Mirai)」と「ドア(door)」を組み合わせたもので、施設をご利用いただく皆さんの“未来への扉が開く場所”となるよう願いが込められています。
当施設がこれまで担ってきた教育文化や地域の行政機能を継承するとともに、「交流」し「学び」「考え」「育み」そして「実践」する拠点づくりを目指してまいります。

施設概要
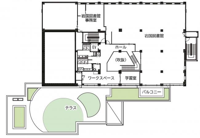
■1階平面図

■2階平面図

■3階平面図

使用料
| 部屋名 | 仕様等 |
面積 (m²) |
定員 (人) |
使用料 (円/1時間) |
|---|---|---|---|---|
| レクリエーションルーム |
交流スペース含め150人収容可 ステージ(収納式)、放送設備、 グランドピアノ、鏡(壁面)あり、 防音仕様 |
117.04 | 99 | 880 |
| 講座室A | カーペット(土足禁止) | 31.22 | 18 | 220 |
| 講座室B | 和室10畳(土足禁止) | 31.22 | 18 | 220 |
|
第1講座室 |
デスク(1人用) |
83.23 | 45 | 550 |
| 第2講座室 | 第3講座室と併用可 | 41.48 | 20 | 330 |
| 第3講座室 | 第2講座室と併用可 | 43.26 | 20 | 330 |
| 第4講座室 | 調理実習室と併用可 | 44.05 | 18 | 330 |
| 第5講座室 |
アップライトピアノ、 鏡(壁面)あり、防音仕様 |
64.34 | 36 | 440 |
| 実験実習室 | 流し台あり | 60.52 | 24 | 440 |
| 調理実習室 | 第4講座室と併用可 | 82.12 | 24 | 660 |
| ワークブース | 個室2室あり・有線LAN対応 | 1.32 | 1 | 220 |
| 学習室 | 仕切りスペース10席あり | 23.92 | 10 | 無料 |
※放送設備、ピアノを使用する場合は改めて使用料が必要です。
※冷暖房使用料は、各室の使用料に含まれています。
※Wi-Fiをご利用いただけます。
施設の案内
中央公民館
1階



交流スペース レクリエーションルーム



第1講座室 実験実習室
2階


学習室 ワークブース
屋外テラス
3階


第2講座室 第3講座室


第4講座室 第5講座室


調理実習室 ホール
いわくに交流テラスMiraidoのその他の施設案内
岩国図書館<外部リンク>


岩国出張所
いわくに市民活動支援センター<外部リンク>


